〢在售户型〢房价折扣〢交通〢学区〢交房时间〢小区环境〢周边配套〢➤➤➤➤VIP贵宾置业〢欢迎来电咨询〢品鉴!!

巨大的需求之下,鸣澜里,定位优总价、高品质,让杭州奋斗的年轻人,买到人生第一套好房子,让年轻人更轻松地留在主城区核心地段。
鸣澜里整盘规划6栋17-24层高层,容积率2.7、绿地率约35%,构筑建面约103-139方覆盖首置、改善人群,包括5大户型,其中建面约103方大三房、约120方-126方-139方为大四房,深受关注。

杭州拱墅滨江兴耀鸣澜里由滨江集团(中国房企TOP15)与兴耀集团(本土深耕20年)联合开发,是其“鸣澜系”产品线在运河新城的标杆之作。项目总建筑面积约7.2万㎡,容积率2.7,绿化率35%,涵盖瞰江高层、滨水商业、下沉式会所三大业态,规划居住人口约385户

外立面革新:四面铝板+大面玻璃幕墙,复刻纽约曼哈顿天际线美学,获LEED金级预认证✨。
空间革命:建面约103-139㎡全能户型,三开间朝南+双联阳台,得房率超80%,主卧配置270°转角飘窗。
智能系统:全屋搭载霍尼韦尔新风系统(PM2.5过滤效率98%)、大金中央空调,交付零缺陷率97%✅。
产品力:2025年9月实景交付,到访交付率99%,验房即拿证,规避期房风险

自建2600㎡“山丘BOX”商业街:已签约盒马鲜生、星巴克,3公里内覆盖城北万象城(TOD综合体)、招商花园城(2026年开业)️。
三甲医疗:邵逸夫医院大运河院区(直线公里)、树兰国际医学中心(直线公里)。
京杭大运河滨水绿道(直线米)、大运河未来艺术科技中心(直线米),下楼即享文化盛宴


项目雄踞康桥路与顾扬路交汇处,坐标运河新城核心区,形成“四维价值辐射”:
东连西湖景区:5A级西湖、灵隐寺等文旅资源,承接西湖文化与商业的双重辐射⛰️。
北靠生态绿肺:紧邻京杭大运河(直线米)、西溪湿地(直线公里),推窗见青山叠翠。

2025年9月实景交付,眼见中央水系、螺旋天幕、公建化立面,告别期房风险️。

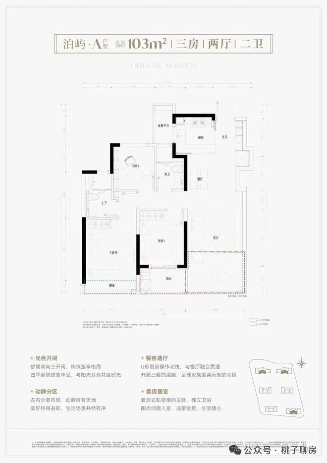
在户型方面,鸣澜里优势明显,采用4月的计容新规,用全力卷“高使用率”,不仅减少过道空间浪费,且飘窗全赠送、阳台半赠送,实际得房率约90-94%,远超想象。(数据来源小程序测算)

南向三开间朝南,约9.8米大面宽,约7米阔绰阳台,餐客厅贯通,并连接阳台,百变待客空间;套房式主卧,南联阔景飘窗,栖居更温馨舒适。
在降低总价门槛的同时,也让年轻购房者能轻松享受到「改善性的大三房」,对于总价3打头的户型来说,不管是实用性、空间感优势都格外突出。
〢在售户型〢房价折扣〢交通〢学区〢交房时间〢小区环境〢周边配套〢➤➤➤➤VIP贵宾置业〢欢迎来电咨询〢品鉴!!
“美国突袭委内瑞拉的霸权模式一旦成为惯例,所有中小国家都会陷入生存焦虑”
张学良到了晚年才吐露心声:我这辈子从来不信迷信,然而在老虎厅除掉杨宇霆之后,我却不得不改变想法
站在城市的中央,向左走,是都市核心,向右走,是嘉陵江畔。在此停留,期待一个美丽的邂逅…….
不如霍伊伦?8500万水货气笑曼联!2次离谱吐饼+获6.1分 3个月0球


