永泰三里城二期售楼部电线小时热线电话,永泰三里城二期楼盘详情-永泰三里城二期售楼部位置-永泰三里城二期一房一价-永泰三里城二期户型图-永泰三里城二期优缺点分析-容积率-环境-配套-学区-第四代住宅-负公摊户型-代密洋房-得房率-全能会所-独立电梯前室-公建化立面-在线选房-遗嘱咨询-项目营销中心,欢迎来电咨询!
永泰三里城二期营销中心电话:欢迎来电咨询售楼部!永泰三里城二期售楼部详情-永泰三里城二期售楼处电话-永泰三里城二期首页网站-永泰三里城二期户型-价格-位置-电话-交通地铁-上海新房-上海楼市新政-遗嘱咨询-上海止跌回稳-自住型商品房-住房货款-血拼两限房-直接认购可预约销售人员,专业一对一热情服务,让您用专业眼光去买房。
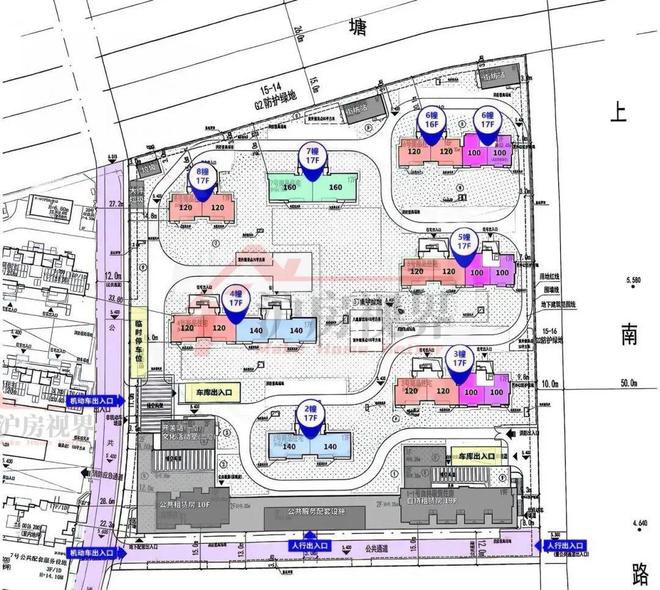
该项目容积率2.0,拟建7幢17层高层商品住宅、1幢19层自持租赁房、1幢10层公共租赁(保障房),以及3层配套公建用房等
该地块坐落于浦东三林板块,其主要优势在于交通条件优越,距离地铁11号线米,一站前滩太古里。

这个项目占地差不多27116㎡,房子不会建得很密,容积率是2.0,最高只能盖到60米高,全部为17F的高层住宅,算下来计容面积大概54232㎡。按照要求,要拿出15%的房子作为自持租赁住房 ,而且中小套户型要占70%以上,所有房子交房的时候都是装修好的,不用自己再操心装修的事。

听说二期全是17层的高楼,户型面积有大有小,不管你是手头不宽裕的刚需购房者,还是想换个大房子改善居住条件,都能找到合适的。
不过可卖的房子不多,还不到400套。和一期相比,二期各方面都有提升,户型设计得更优!
4月28日,浦东新区规划和自然资源局公示了三林社区Z000701单元15-15A地块(永泰三里城二期)的规划设计方案。


地块位于浦东三林板块核心。总用地面积约2.71万㎡,总建筑面积约9.32万㎡,容积率
,绿地率35%。方案显示,拟建7幢17F高层住宅、1幢19F自持租赁房、1幢10F保障房及5400㎡社区配套用房,中小套型住宅(≤120㎡)占比70%。

二期全部规划为17F的高层住宅,共计7幢,楼间距经过精心设计,充分考虑了居民的隐私与居住舒适度,确保各楼层住户都能享受到充足的阳光与开阔的视野。
配套建筑:除了住宅建筑外,还规划有1幢19F自持租赁房、1幢10F保障房及 5400㎡社区配套用房。社区配套用房将进一步丰富社区的服务功能,涵盖社区活动中心、老年活动室、儿童游乐区等多种功能空间,满足不同年龄段居民的日常活动需求。
该地块为三林镇金光村“城中村”改造的重点项目,紧邻地铁11号线米宽公共步行通道,连接社区与地铁站
重磅消息,一站直达前滩、中外环轨交红盘永泰三里城1期五批次已过会,2024.6.7入市啦!6.21已开盘 目前少量房源直接认购中.
总价600-800万之间,当下热门板块无外乎唐镇、高行等板块,中外环仅能选择更为偏远的御桥、外高桥等区域。
永泰三里城位于三林板块腹地,区域内三林滨江、筠溪小镇、新杨思都属于浦东金色中环带上的重要组成部分。
项目3公里以内就涵盖了前滩、三林滨江、新杨思等浦东重量级板块,近享世纪规划红利。

前滩中央商务区的居住需求势必会外溢,三林滨江自身拥有低密、宜居的属性,中央商务区+低密居住区的黄金组合,将三林滨江的价值高度推向顶峰。三林滨江的热度有目共睹,住宅价格在10万/㎡+,别墅价格高达13.38万/㎡,且板块价值已深入人心。

事实上,三林滨江在空间上与前滩更为贴近,但永泰三里城在时间距离上更占优势。

不仅如此,项目周边拥有中环、南北高架、外环、杨高南路等主干道,自驾前往浦西市区、陆家嘴、张江等都非常便利。
与规划中的三林滨江截然不同,永泰三里城所在的三林社区,是三林现有居住氛围更为成熟的片区,周边城市资源已然非常醇熟。
更难能可贵的是,项目是超30万方河滨大城,周边皆是规划住宅用地,等整体建成后,将大幅度提升周边城市界面。项目周边有比较成熟的学校和商业配套,比如中房金谊广场、新达汇·三林、上海三林中学、上海市育人中学等。

这里有前滩太古里、前滩31、浦发银行东方体育中心、前滩休闲公园、前滩体育公园、前滩友城公园等。

近享前滩+新杨思规划红利,价格更为亲民的永泰三里城,是浦东刚改、改善客户的不二之选!
项目容积率仅2.0,是上海中外环相当臻稀的双面滨河、低密社区,规划有16-19层高层,6层电梯洋房。
,北侧、东侧皆是天然河道,整体的居住环境静谧。光这个地块天赋,在市场上就鲜有对手。
仁恒的物业服务水准业内外的认可度都非常高,荣膺中国金钥匙6S管理创新奖、中国物业管理综合实力百强等诸多殊荣。

所以,整个社区从地块天赋、颜值,到自带恒温泳池,再到低密宜居的居住条件,都算的上尤为出众。
永泰三里城二期主推320套房源,建面约99-151㎡高层,建面约140-241㎡洋房/叠加。
更高的层高意味着更宽阔的居住空间,也意味着投入更多的建筑成本,这背后是开发商不惜代价为业主一步到位的考量。
事实上,项目建筑层高比市面常规户型高足足约10-20公分,即使装完中央空调和地暖也不显压抑。

现在很多新盘都采取封阳台策略,整个阳台的面积都是购房者花真金白银买的。
一般来讲都是建筑面积约8㎡,如果不封阳台,那面积只算一半,相当于给买家足足省了约4×8.2≈32.8万元。
,是国内绿色建筑高标准,健康主导之上,起到降噪、少尘等的防护效果,细节考究品质有保障!项目装修标准也是诚意满满,
永泰三里城二期售楼部电线小时热线电话,永泰三里城二期楼盘详情-永泰三里城二期售楼部位置-永泰三里城二期一房一价-永泰三里城二期户型图-永泰三里城二期优缺点分析-容积率-环境-配套-学区-第四代住宅-负公摊户型-代密洋房-得房率-全能会所-独立电梯前室-公建化立面-在线选房-遗嘱咨询-项目营销中心,欢迎来电咨询!
永泰三里城二期营销中心电话:欢迎来电咨询售楼部!永泰三里城二期售楼部详情-永泰三里城二期售楼处电话-永泰三里城二期首页网站-永泰三里城二期户型-价格-位置-电话-交通地铁-上海新房-上海楼市新政-遗嘱咨询-上海止跌回稳-自住型商品房-住房货款-血拼两限房-直接认购可预约销售人员,专业一对一热情服务,让您用专业眼光去买房。


