“好房子”建设是住宅产品的战略性发展方向,正在从政策理念转化为行业实践,并将成为房地产市场的长期发展趋势。
在国家大力推动住房品质升级的政策背景下,“好房子”已成为房地产行业高质量发展的核心命题。本专题立足行业前沿,从政策导向、企业战略和产品创新三大维度深度解析“好房子”。
在政策端,梳理国家及地方关于“好房子”建设的最新政策要求,解读“好房子”的发展方向;在企业端,探讨标杆房企的“好房子”战略布局,揭示房企的产品升级路径;在产品端,聚焦安全性能、舒适宜居、绿色低碳、智慧科技和社区环境这五个方面,刨析行业产品力现状及具有示范意义的标杆项目。在居住需求持续升级的当下,为行业提供借鉴,探索理想人居的更多可能。
从宏观角度看,随着城镇化进程的不断推进,居民对住房的需求早已从单纯的“有房住”转变为“住好房”。改善购房者成为新房市场的主力,他们对房屋的品质、环境、配套等方面有了更高的要求。
行业的转型需求是推动“好房子”发展的另一重要动因。2016年开始,“房住不炒”成为房地产市场调控的基本原则,从中央到地方密集出台各种调控措施。在这一背景下,一二线重点城市纷纷出台新房“限价”政策,其初衷是为了抑制房价过快上涨。
然而,限价令的实施通过行政手段强制干预市场价格形成机制,在稳定房价预期的同时,也严重压缩了住宅项目的利润空间。房企为维持基本盈利,不得不在成本方面进行压缩,直接导致建筑材料降档、施工工艺简化、配套设施缩减等一系列质量问题。
随着大量限价项目进入交付期,住宅品质问题逐渐凸显出来,购房者对房屋质量、居住环境等方面的投诉不断增加,不仅损害了购房者的权益,更动摇了市场信心,影响行业的长期可持续发展。面对愈演愈烈的质量问题和信任危机,行业开始重新审视发展战略,从追求规模转向注重品质。
在居住需求升级和行业转型压力的共同作用下,“好房子”逐渐成为行业的共识和发展方向。
2024—2025年,保利、中海、华润等头部房企相继发布“好房子”战略,其战略共性以安全、舒适、绿色、智慧四大核心为基础维度,延展至精工、服务、低碳、健康等衍生价值,并通过量化技术标准实现落地闭环。
各房企普遍建立完整技术标准体系,覆盖物理空间到服务生态,均体现精细化管理思路。电建地产明确以“安全、健康、绿色、智慧、精工、和美”六大维度为核心,下设26个专项、75个控制要点、165个技术参数,覆盖设计、建造、服务全周期;招商蛇口七大“技术体系”以“安全、舒适、绿色、智慧”4大基础维度,叠加“精工、美学”2大品质提升项,最终落地为“贴心服务”,细化出27项可感知亮点;建发房产从“新中式文化理念”出发,将6大价值维度通过5大策略细化为超1050条技术项,覆盖从建筑材料到社区服务的全流程。
房企好房子战略从定性主张转向参数管控,实现效果可验证。中海地产通过自研“Living OS系统”达成硬性指标,隔声性能提升20%,污染降低70%等量化指标。绿城中国好房子产品标准含226项条款,明确光伏覆盖率≥30%、抗菌建材TOC降解率≥90%等量化指标。
房企好房子战略智慧全链化,智能化从设备层向服务场景延伸。华发股份以“数字化、智能化”为核心,通过BIM技术实现施工全程可视化,搭载“智慧家居大脑”,支持业主自定义场景。中海地产“Living OS系统”整合智能家居、社区服务、城市配套,实现“一键呼叫电梯”“快递无人配送”“周边商圈优惠推送”等跨场景服务串联。
在价值延伸层面,招商蛇口通过“全龄友好社区”“家政服务30分钟响应”等27项软性亮点覆盖全体系;华润置地三好十二优体系,通过活力街区、疗愈景观、灵动户型等十二大生活场景,落地健康、智慧等8大价值。
房企正从空间提供商转向技术解决方案服务商,通过技术标准化、服务生态化、价值长效化重构竞争壁垒。未来,能以用户痛点驱动创新、能在成本与品质间精准平衡、能够将政策纲领转化为自主技术语言的企业,方能实现从“造房子”到“造生活”的跨越。

随着2025年5月《住宅项目规范》国家标准的实施,中国房地产行业正式进入从量到质的转型期。新标准对层高、电梯配置、噪声控制等提出强制性要求,推动行业向高品质发展。
招商蛇口响应政策,率先推出招商好房子技术体系,以“此心安处是吾家”为核心理念,构建了“智慧恒久的品质之家、自然和谐的美学之家、友邻相伴的长情之家”三大价值主张,并细化为“安居无忧、舒适健康、绿色低碳、智能便捷、精工匠心、美学焕新、贴心服务”七大维度内容。这一体系不仅全面对接“好房子”国家标准的各项要求,更从人居体验的深层次需求出发,重新定义了新时代品质住宅的内涵与外延。

以“安居无忧”为例,招商蛇口在住宅建筑安全性基础之上,通过安全监控+安全预警,以智能预警系统与人性化设计,覆盖烟感、燃气、高空抛物等隐患,搭配天使之眼守护老幼,从被动防御到主动关怀,让安全防护融入日常。

在“舒适健康”方面,依托新风系统、全屋净水系统等技术,保障空气质量和用水安全,在此基础上,如何让居住者“睡个好觉”是“招商好房子”的一大特色。《2025年中国睡眠健康调查报告》显示:中国18岁及以上人群睡眠困扰率为48.5%。针对这一痛点,招商蛇口率先掀起深度睡眠革命,依托“特殊工艺、设备减震、隔音材料、智能监测”等前沿技术,打造“深度睡眠系统”特色IP,从根本上改善人们的睡眠质量,用科学手段治愈现代人的失眠焦虑。

此外,在“幸福厨房、全能阳台”两大特色IP内容上,前者设置厨房空调、水槽洗碗机联动等设备,以集成式设计实现排烟与制冷协同运作,确保烹饪时空气流通且温度适宜;后者则是招商蛇口推出的特色阳台整装解决方案,通过对智能提升窗、集成洗衣柜/家政柜的有机整合,打造舒适整洁的多功能阳台,持续构建“招商好房子”的差异化优势。
在“绿色低碳”方面,招商蛇口将环保理念融入日常生活场景。通过超低能耗建筑、智能垃圾投递模块、悬浮式去家务化设计等,以科技赋能环保日常,让绿色不仅是标配,更是省力、省钱、省心、省事的可持续生活美学。如打造环保魔方特色IP,提供智能无感垃圾投递系统,把垃圾投递运输提升到“无感”,系统可以用手或者脚踏感应无接触投递,革新垃圾处理,享受更多绿地。这种长期主义的绿色发展理念,使“招商好房子”的低碳承诺具有坚实的实践基础。

“贴心服务”则体现了招商蛇口对“房子是容器,生活是内容”的深刻理解。依托招商积余物业团队,通过24小时健康管家、共享智库、机器人服务,打造全维度生活响应网络;而“招商荟”“小招服务站”等平台,则能实现服务与需求的精准匹配。如在特色服务ip——机器人服务方面,部署巡检机器人、车场无人值守等前沿技术,从“机器替岗”到“机器人即服务”, 从跑腿到服务,提供贴心的用户体验。

招商蛇口“招商好房子”技术体系的独特在于,它并非七大维度的简单叠加,而是通过系统化整合,形成“空间场景-创新技术-贴心服务”的全链条深度协同。这种系统性思维使“招商好房子”能够将政策倡导的理念转化为可感知、可体验的生活场景,从而在满足“好房子”国家标准的基础上,创造出更高维度的居住价值。
在实践层面,该体系已在全国六大标杆项目落地:北京招商序部署机器人服务实现安全防护与高舒适体验;上海康定壹拾玖融合历史文脉与净水科技;成都锦城序以立体庭院“千川汇流”实现自然与智慧交融;西安玺打造深度睡眠屋并获宁静认证;苏州序通过“朝夕书房”重塑社区阅读空间;佛山华玺则以无感垃圾投递定义现代奢居。这些项目虽定位多元,却共同验证了技术体系对不同地域、客群的适配性。
舒适宜居作为“好房子”的核心评价维度,其内涵已从单纯追求物理面积的扩张,深化为对空间效能、健康环境及人性化细节的系统性优化。通过对全国范围内近百个代表性标杆项目的深入分析,当前行业在提升居住舒适性方面的实践路径可归纳为以下关键领域的创新突破:
在土地资源约束趋紧与居住需求持续升级的双重背景下,空间效能优化已成为衡量“好房子”品质的核心指标。行业实践表明,传统以建筑面积为核心导向的开发逻辑正逐步转向对空间使用效率与场景适应性的系统性提升。头部房企通过建筑结构优化、功能空间复合化设计及可调节围护系统等设计,在保障结构安全与规范要求的前提下,有效提高套内实际使用面积的比例,这体现了从单纯提供物理空间向提升居住体验价值的转变趋势。
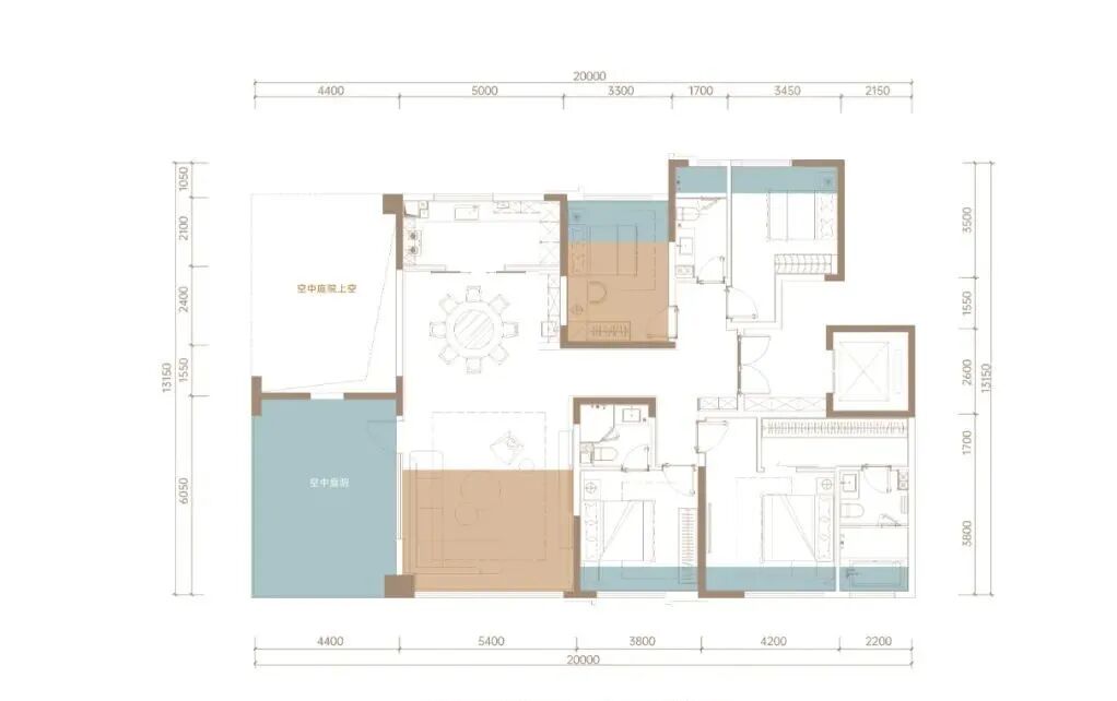
长沙润和大泽湖建面约188㎡户型,通过全赠送的挑高6.2米、超26㎡空中花园,以及符合政策不计面积的超大飘窗设计,结合其他半赠送空间,实现总赠送面积约58.62㎡,得房率约107.54%。

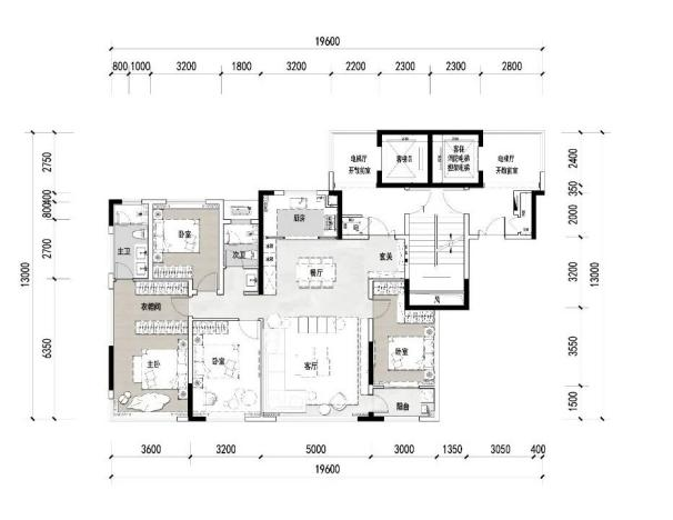
以武汉首个获批四代宅的项目中建壹品汉韵公馆为例,全户型得房率达103%~109%,得益于露台、阳台、独立电梯前室等额外空间设计及较低合同公摊。具体来看,建面约143㎡户型实得147㎡,得房率约103%;建面约191㎡户型实得208㎡,得房率约109%,实际居住空间超出合同面积,提升了居住体验。


华发珠海湾项目,其LDKG+X一体化客厅采用9~16米横向开间设计,实现客餐厨及花园无界贯通,强化自然采光与通风效能。住宅建筑通过三错层立体露台结构实现垂直方向视域隔离,形成独立全景庭院系统,确保各户隐私性的同时拓展户外功能承载。


长沙招商揽阅128㎡/139㎡户型,通过“独立玄关+LDKB一体化”布局,阳台进深达2.4米,实现“客厅-餐厅-厨房-阳台”全开放式动线。


北京电建长安华曦府建面约78㎡户型,配备270度转角落地窗,实现了三面采光的通透格局。北向的两个卧室之间的墙体非承重墙,住户可根据个人需求灵活调整空间布局。

健康环境保障体系已从传统的温湿度等基础物理指标单维度控制,迈向声、光、气、水的系统性解决方案。这种转变本质上是对“健康”概念在居住场景中认知深化的体现——健康不再仅被定义为生理指标的静态达标,而是延伸至人体在建筑空间中多感官交互体验的动态平衡。
北京绿城和樾望雲声环境采用静音楼板、设备减振等7重降噪体系;光环境配备无主灯智能调光系统适配多场景;气环境通过新风四级过滤+UV除菌模块主动消杀病菌;水环境则以四步净水系统(前置过滤+中央软水+中央净水+末端直饮水)搭配适恒健康水系统,全方位提升居住品质。
上海绿城潮鸣东方项目中,声环境采用10mm三玻两腔隔音窗、静音楼板及预制混凝土夹心保温外墙板;光环境以3.5m标准层高优化自然采光;气环境通过中央空调+新风系统联动及近零能耗建筑框架保障温湿度稳定;水环境则配备中央净水软水系统入户。


在“好房子”政策导向下,智慧科技的应用正从初期被动响应指令的初级阶段,跃迁至主动感知、预判并满足需求的智能化阶段。当前领先的“好房子”住宅项目,通过构建无感交互系统、智能家居生态平台、数字化智慧物业三大系统,构建起“预见需求、精准服务”的人居范式,为政策所倡导的“安全、舒适、绿色、智慧”目标提供了生动实践。
传统通行模式存在多次操作、效率低、体验感差的痛点,而当下“好房子”通过空间感知预判技术,将无感通行从身份验证升级为行为预判,重构从社区到室内的流畅动线。
西安绿城锦海棠的智能化通行系统,作为绿城“六感好房子”体系中“智享感”的核心实践,通过人机交互通行技术覆盖“社区入口、车库、单元、电梯、入户”全流程,实现无感归家动线,并通过自然采光车道、地下光厅、双层大堂等设计强化体验,成为绿城“智享通行”在高新改善住宅中的标杆落地案例。
智能化通行系统是招商蛇口好房子技术体系中“智能便捷”维度的核心实践,通过多模态感知、电梯联动与无感交互技术,实现从社区入口到入户的全程无钥匙化、自动化通行。这一技术已成为“序系”产品统一智能标准,在杭州序、西安序、北京序等项目中完成技术验证与场景落地。

目前,智能家居正致力于消除不同品牌设备之间的技术隔阂,借助统一的通信协议实现不同品牌、不同种类设备之间的无缝连接。基于用户的实际生活需求,智能家居正在构建一个以主动服务为核心的智能生态系统,而不仅仅是作为被动控制的工具。
上海绿城潮鸣东方项目深度融合华为全屋智能3.0技术,实现中央空调、地暖、灯光、安防等12个子系统无缝集成。该系统具备主动健康空气功能,依托AI学习的无感交互,可主动适应用户习惯:如归家模式提前调温湿度、夜间起身自动亮柔光灯,语音指令我要看电影时联动灯光、幕布和音响。


此外,艺术场景革命支持一键启动主题模式,如大溪地阳光或冰岛峡湾,联动声、光、香氛系统,创造沉浸式居家度假体验。通过无缝集成和主动服务,将科技与生活艺术融合,体现了智慧住宅从设备控制到空间服务的进化。

成都华发统建·锦宸院引入华为智能系统,覆盖智能安防、环境调控等场景,实现灯光、温控、门锁一键操控,提升便捷性与安全性。

“好房子”建设是住宅产品的战略性发展方向,正在从政策理念转化为行业实践,并将成为房地产市场的长期发展趋势。展望未来,“好房子”建设将是一个持续深化、不断完善的过程。
未来,相关的政策体系将进一步完善和细化。5月1日实施的《住宅项目规范》只是构建“好房子”标准体系的起点,当前各省市的相关政策也处于探索阶段,随着试点项目的持续推进和实践经验的不断积累,“好房子”标准体系将迎来更深层次的完善与细化。
刚需、改善、高端等不同定位的“好房子”可能会有差异化的设计和技术指标;从中央到地方的标准也将更加成熟和稳定。政策的动态演进,也将推动“好房子”建设继续向着精细化、差异化的方向发展。
行业转型将持续推进。在“好房子”理念的引领下,房地产开发模式将从传统的规模扩张转向品质提升,围绕“安全、舒适、绿色、智慧”四大维度,住宅产品力将持续提升,产业链上下游协同也将更加紧密,都将围绕品质提升进行深度整合,从而形成良性互动,持续推动整个产业向创新驱动、品质优先的高质量发展道路迈进。
关于公开征求《合肥市优化调整建筑工程容积率计算规则等相关规划管理要求的通知》(修订征求意见稿)意见的公告


