您当前使用的浏览器版本过低,可能存在安全风险,建议升级浏览器,或者用以下浏览器浏览
近期苏州楼市迎来好消息!2024年12月1日起,苏州购房契税政策迎来调整:140平以内(含)的房源,首套和二套均按1%缴纳契税;140平以上的房源,首套按1.5%,二套按2%缴纳。这一政策无疑为购房者减轻了负担,尤其是首次置业和小面积户型的朋友们,正是安家置业的绝佳时机。今天,就为大家带来一个值得关注的优质楼盘——金融街融悦沁庭,看看它如何成为您理想家园的选择。
金融街融悦沁庭,坐落于吴中太湖新城,是一个纯洋房社区,距离华师苏实小仅一步之遥。项目总占地面积约4.8万方,建筑面积约11.5万方,由7-10层的纯洋房组成,容积率仅为1.6,居住密度低,舒适度高。小区共有609户,车位配比达到1:1.5,停车无忧。
项目外立面采用干挂铝板搭配三玻两腔Low-E玻璃,不仅美观大方,还能有效隔热隔音。交付标准更是诚意满满,中央空调、新风系统、地暖三大件一应俱全,还贴心配备了软水系统,让您的居住品质更上一层楼。

实力开发商是品质的保证。金融街控股被誉为中国华尔街缔造者,已在吴中太湖成功打造融悦湾、融悦时光两大标杆项目;苏州国太发展作为吴中太湖新城开发建设主体,累计投资约300亿,持续助力区域高质量发展。金融街融悦沁庭是金融街在苏州打造的第三座融悦系产品,品质值得信赖。

交通方面,项目距离4号线号线米,步行即达。周边还有友新高架、东太湖大道、沪常高速等主干道环绕,无论是日常通勤还是周末出游,都能轻松畅行长三角。
教育资源更是丰富,华中师范大学苏州湾实验小学就在马路对面,华中师范大学苏州实验中学、北美国际高级中学、苏州湾实验幼儿园、湾西幼儿园(规划)等优质教育资源环绕,让孩子在家门口就能享受优质教育。

生活配套一应俱全。商业方面,永旺梦乐城、歌林小镇、苏州湾中心广场、金融街融悦湾中心(在建)等满足您的购物需求;文体方面,快手天鹅港国际电竞馆、苏州橙天嘉禾360剧场等提供休闲娱乐好去处;医疗方面,苏州市立医院总院(在建)、星晨儿童医院(在建)为健康保驾护航;生态方面,七子水街、天鹅湖公园、太湖景观生态大堤等让您随时亲近自然。

在吴中太湖新城,纯洋房社区可谓凤毛麟角。洋房相比高层住宅,得房率更高,居住密度更低,更接地气,社区圈层也更为纯粹。金融街融悦沁庭作为区域内稀缺的纯洋房住区,为您提供了难得的低密居住体验。

项目外立面采用高成本打造,甄选干挂铝板搭配大面积三玻两腔LOW-E玻璃,形成轻盈公建化立面。大面积玻璃不仅让建筑更加通透、明亮,还能映照四季美景,让您的家成为一道靓丽的风景线。
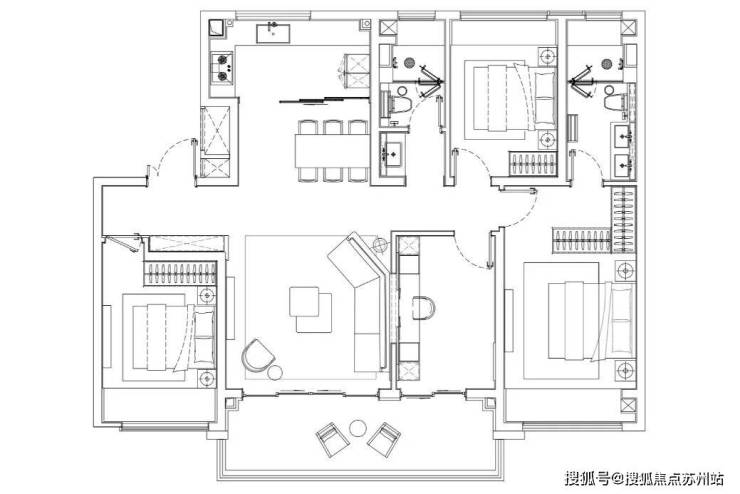
【心悠】-115㎡ 三开间朝南设计,约5.5米宽厅带来开阔感,约2M进深南向阔尺阳台让阳光洒满每个角落,全屋飘窗设计增加空间感,主卧套房设计保障私密性。

【心悦】-130㎡ 三卧朝南,LDKB格局让客厅、餐厅、厨房、阳台形成流畅动线灵动空间可根据需求自由调整,主卧套房设计提升居住品质。

【心雅】-152㎡ LDBK聚场设计,厨房联通家政阳台并设中岛台,南北双阳台保证通风采光,四开间朝南让阳光充足,主卧套房设计彰显尊贵。

项目在品质打造上毫不吝啬,全屋标配中央空调、新风系统、地暖三大件,以及软水系统,全屋精装均考究功能、性能,甄选国际品牌,确保居住舒适度和健康度。


随着契税政策的利好,加之金融街融悦沁庭的优质产品力,太湖新城的未来发展潜力不可限量。作为苏州重点发展的新城之一,太湖新城各项配套设施日趋完善,生态环境优越,是宜居宜业的理想之地。金融街融悦沁庭凭借其稀缺的纯洋房产品、优越的地理位置、完善的配套和过硬的品质,必将成为区域内炙手可热的宜居选择。
如今正是置业良机,无论是自住还是投资,都是不容错过的机会。在政策利好和产品优势的双重加持下,选择金融街融悦沁庭,就是选择了一个品质与未来兼具的家。
声明:本文由入驻焦点开放平台的作者撰写,除焦点官方账号外,观点仅代表作者本人,不代表焦点立场。
小学和中学方面,有与园区星湾学校合作的漕湖学校,以及正在建设的苏相实验学校,教育资源丰富,是理想的苏州学区房选择。在当前房地产市场环境下,低密度洋房产品日益稀缺,而海棠喜舍凭借1.8的超低容积率和46%的高绿
今天,就为大家介绍一处位于苏州高铁新城的品质楼盘和风雅信,它不仅拥有得天独厚的地理位置,更融合了日式匠心与现代生活理念,为您打造理想家园。在这里,您可以享受到日式匠心的精致,也能感受到现代生活的便捷;可以
这些政策无疑为想在苏州安家的朋友们打开了方便之门,而今天要介绍的奕澄湾,正是这样一个能让你轻松落户苏州的优质选择。奕澄湾,坐落于苏州园区中环比斯特旁,是苏州湖湾独栋地标资产。在这里,您将享受到国际化的生活配套
在这样的政策背景下,位于吴中太湖新城的金融街融悦沁庭,凭借其独特的区位优势和产品品质,成为了众多购房者关注的焦点。金融街融悦沁庭的户型设计堪称匠心之作,得房率高,空间利用率好,每一寸空间都经过精心规划。金融街
今天,就为大家介绍一个位于太湖新城的优质楼盘文泽华府,它不仅拥有得天独厚的地理位置,更凭借过硬的品质和完善的配套,成为苏州楼市的一颗璀璨明珠。文泽华府由中建三局城投、联投置业和苏州湾集团三大实力开发商联合
苏河湾一号售楼处(2025苏河湾一号)首页网站-苏河湾一号楼盘价格详情-户型配套
同进君麓售楼处电话-同进君麓(同进君麓)首页网站-同进君麓最新房价-户型-容积率-小区配套-楼盘详情/价格/户型
苏河湾一号官方首页网站-苏河湾一号售楼处电话-苏河湾一号楼盘详情-交房时间-地址-最新房价户型图-小区环境-楼盘详情-交房时间-周边配套-售楼处电线
太湖科学城芯芳菲澜院:1.0低密联排,首付15%改善置业正当时
政策利好!紫金翡丽甲第:金鸡湖东稀缺洋房,大师设计豪宅标杆
2025象屿苏河琴庐最新房价-楼盘详情-户型配套丨2025象屿苏河琴庐楼盘详情-价格-面积-户型
上海绿宝园翡梵(售楼处)首页网站-上海2025绿宝园翡梵销售中心(营销中心)-上海绿宝园翡梵楼盘欢迎您-小区环境-户型-价格-地址-楼盘详情-周边配套-交付时间


