您当前使用的浏览器版本过低,可能存在安全风险,建议升级浏览器,或者用以下浏览器浏览
近期,苏州楼市迎来了一系列重磅利好政策,为购房者带来了实实在在的福利。公积金利率下调至2.6%,首付比例降至15%,贷款额度最高可上浮50%,使用范围不断扩大,甚至连灵活就业人员也能享受公积金缴存补贴。这些政策如春风般温暖,让更多家庭圆了安居梦。在这样的政策环境下,选择一处兼具品质与潜力的太湖新城家园,显得尤为重要。今天,就让我们一同走进金融街融悦沁庭,看看这个太湖新城的纯洋房社区,如何成为您安家置业的不二之选。
吴中太湖新城纯洋房社区,双地铁环绕,华师苏实小一路之隔,建面约115-152㎡融悦系纯洋房,为您打造理想生活家园。

金融街融悦沁庭坐落于太湖新城,总占地面积约4.8万方,建筑面积约11.5万方。项目采用7-10层的纯洋房设计,容积率仅为1.6,是区域内难得的低密度社区。整个小区共有609户,车位配比高达1:1.5,停车无忧。外立面采用干挂铝板搭配三玻两腔Low-E玻璃,不仅美观大方,更兼具保温隔热性能。交付标准更是诚意满满,中央空调、新风系统、地暖三大件一应俱全,还贴心配备了软水系统,让您的生活品质一步到位。
金融街融悦沁庭的地理位置堪称C位,周边配套全维丰盈。想要购物休闲,永旺梦乐城、歌林小镇、苏州湾中心广场以及在建的金融街融悦湾中心都是不错的选择。文化娱乐方面,有快手天鹅港国际电竞馆、苏州橙天嘉禾360剧场等场所。医疗资源同样丰富,苏州市立医院总院和星晨儿童医院都在建设中,为家人健康保驾护航。生态资源更是得天独厚,七子水街、天鹅湖公园、太湖景观生态大堤环绕左右,让您随时享受清新空气和优美景色。
金融街融悦沁庭由金融街控股和国太发展两大实力开发商联袂打造。金融街控股被誉为中国华尔街缔造者,已在太湖新城成功打造融悦湾、融悦时光两大标杆项目,品质有口皆碑。国太发展作为太湖新城的开发建设主体,累计投资约300亿,持续助力区域高质量发展。这是金融街在苏州打造的第三座融悦系产品,延续了品牌一贯的高品质标准,值得信赖。

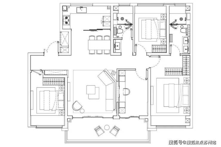
【心悠】-115㎡ 三开间朝南设计,约5.5米宽厅带来开阔感,约2米进深的南向阔尺阳台让阳光洒满每个角落,全屋飘窗设计增加空间利用率,主卧套房设计保证私密性,是年轻家庭的理想选择。

【心悦】-130㎡ 三卧朝南,LDKB格局让客厅、餐厅、厨房、阳台形成流畅动线灵动空间可根据需求自由调整,主卧套房设计,适合改善型家庭。

【心雅】-152㎡ LDBK聚场设计,厨房联通家政阳台并设有中岛台,南北双阳台保证通风采光,四开间朝南让阳光充足洒入每个房间,主卧套房设计,是三代同堂的理想选择。

金融街融悦沁庭最大的优势在于其纯洋房定位。在区域内纯洋房产品稀缺的情况下,项目打造了7-10层的纯洋房社区,得房率高,居住舒适度佳,圈层也更加纯粹。交通方面,距离4号线号线米,还有友新高架、东太湖大道、沪常高速等环绕,出行便捷。教育资源更是得天独厚,苏州湾实验小学一路之隔,还有苏州湾实验中学、北美国际高级中学等优质教育资源环绕,为孩子的成长保驾护航。

项目在品质打造上更是不遗余力,外立面采用干挂铝板搭配大面积三玻两腔LOW-E玻璃,形成轻盈公建化立面,不仅美观,更兼具保温隔热性能。全屋标配中央空调、新风系统、地暖三大件,以及软水系统,全屋精装均考究功能、性能甄选国际品牌,细节之处彰显品质。

在苏州楼市政策利好的持续加持下,太湖新城正迎来发展的黄金期。随着交通网络的不断完善,商业配套的日益丰富,教育医疗资源的持续投入,太湖新城的价值潜力正在逐步释放。金融街融悦沁庭作为区域内稀缺的纯洋房社区,不仅拥有得天独厚的地理位置和完善的配套资源,更有品牌开发商的品质保障。随着区域价值的不断提升,这里的房产投资价值也将水涨船高,无论是自住还是投资,都是明智之选。
声明:本文由入驻焦点开放平台的作者撰写,除焦点官方账号外,观点仅代表作者本人,不代表焦点立场。
整个项目总建筑面积约24万平方米,容积率仅为1.27,是难得的低密社区。加上仁恒和华发两大品牌联袂打造,以及贝尔高林的景观设计,使得整个项目不仅是一个居住空间,更是一种生活方式的体现。狮子山澜庭/院作为高新区
秉持人本、阳光、绿色的企业价值观和为人造房的使命,依托朗诗控股平台成熟的绿建科技及优质绿建资源,朗诗地产业务覆盖全国主要一二线城市及重点经济区域,基本实现全国化布局,开发超过150个项目,开发总面积逾
他们非常了解苏州这座城市的文化和地理特点,在苏州已经打造了多个标杆项目:2015年的铂悦府(别墅1.0时代),2018年的铂悦犀湖(别墅2.0时代),现在他们带来了鸿湖上,开启了苏州别墅3.0时代独享湖的
地段优势:五潨泾・澄院位于苏州相城区,这是苏州重点发展区域,城市规划和资源投入都很给力。区域发展成熟度:虽然相城区发展迅速,但与苏州传统核心城区相比,在商业繁华程度、文化资源丰富度等方面可能还有差距。五潨泾
虹桥融景-售楼处首页-虹桥融景-售楼处电话-开盘时间-翡雲悦府房价-户型-楼盘详情-周边环境-户型-价格-地址-楼盘详情-售楼处电线%起,双湖板块的低密品质生活
2025绿宝园翡梵(营销中心)首页置顶网站-绿宝园翡梵售楼中心(售楼处)绿宝园翡梵售楼处电话-地址-价格-户型-小区环境-楼盘详情-周边配套
鹏瑞云璟湾(售楼处)首页网站-鹏瑞云璟湾售楼处欢迎您-鹏瑞云璟湾楼盘详情-户型配套-最新价格-最新资讯-售楼处位置
芯火相城企业生长录解码智能驾驶独角兽:为何将全球研发中心落子阳澄湖?
览月阁(售楼处)首页网站-2025览月阁销售中心(营销中心)-览月阁楼盘欢迎您-小区环境-户型-价格-地址-楼盘详情-周边配套
中铁建西派云间(中铁建西派云间售楼处)官方首页网站-2025中铁建西派云间房价_楼盘评测丨地址丨详情丨中铁建西派云间售楼处电线
杭州绿城春来晴翠(售楼处)首页网站-杭州2025绿城春来晴翠销售中心(营销中心)-绿城春来晴翠楼盘欢迎您-小区环境-户型-价格-地址-楼盘详情-周边配套-交付时


