项目地块组团两所优质学校,后南仓小学+9年制首师大附中通州校区双名校加持;


需要注意的是,西侧有京承铁路线和飞机航道,会有噪音的影响,西南角的高压线已明确会入地,没有完美的房子,这个就需要看大家的想法了;

项目由东西两个地块构成,规划13栋楼共907户,其中69㎡126套、86㎡/89㎡316套、101㎡253套、124㎡212套,楼高为9-18层洋房及小高,社区整体采用北高南低,正南正北布局,均可直面通惠河一线米;

面积段为69㎡-86㎡-89㎡三居、101㎡-124㎡四居,还是好房子标准,得房率90%以上;楼盘动态:转9999【售楼部】获取详细资料!样板间做了4个,并且已全部开放,分别是69㎡、89㎡、101㎡、124㎡;
首先我们来看看69㎡的户型,竟然能做到三居,还是南北通透的,真是颠覆传统的极限设计,总价400万起,首付60万,得房率92%的好房子,对于朝阳及副中心的刚需客群来说,十分有吸引力;
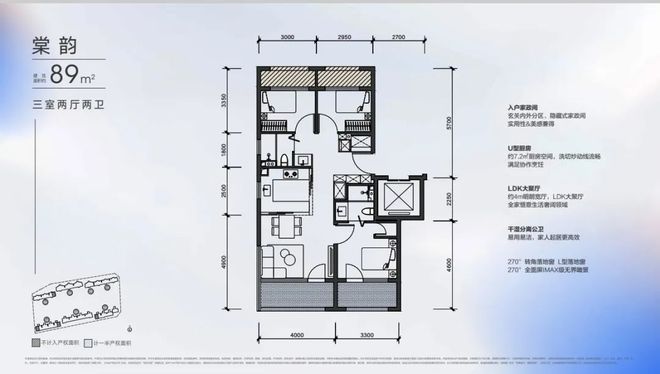
南北通透,6.8米南向双面宽,客厅面宽3.6米,LDK一体化布局,入户玄关+独立家政间及多重全屋收纳空间;

86㎡三居:传统型的三居格局,69㎡的扩大版,入户玄关+家政间,客厅面宽4米,LDK一体化设计,主卧套房设计,北向两次卧可根据需求改造,得房率95.58%,适合二胎家庭或品质刚需。

89㎡三居:86㎡的升级版,边户设计,客厅270°转角落地窗,IMAX级视野,一线%,这个户型价格肯定比86㎡的高,预算可观的话,可以考虑这个户型;楼盘动态:转9999【售楼部】获取详细资料!!

101㎡四居:这个面积段做到了全明的四居,总价600来万,朝阳区可买不到这个价位并临铁的好房子;3+1房设计,南北通透+南向三面宽,客厅3.45米,入户800库+U型厨房配置,餐客一体+双餐边柜,主卧套房带L型步入式衣帽间及独立卫浴,得房率95.57%;楼盘动态:转9999【售楼部】获取详细资料!!

124㎡四居:经典的四叶草户型,南北通透+10.5米南向三面宽+全明户型,餐客同宽配备双餐边柜,G型厨房操作空间更足,南向面宽4.05米,主卧套房设计,得房率91%。楼盘动态:转9999【售楼部】获取详细资料!!

全系都是满配精装交付,全屋搭载新风+中央空调,配备方太智能厨电、摩恩卫浴等一线库、家政间、嵌入式储物柜等收纳体系;

外立面采用“流金屏”设计,以真石漆+金属铝板+玻璃幕墙组成,形成现代简约美学风格,颜值审美还是很在线;

社区内打造约1500㎡下沉式隐奢会所,涵盖恒温泳池、健身中心、私宴厅、四点半学堂等多元空间,满足全龄段社交需求。


归家大门以运河流动水纹为灵感,打造百米鎏金界面,搭配陈列式立柱,层层递进,归家仪式感拉满;

总的来说,总价400万买69㎡三居,地铁4站还能直达国贸区域,周边还有万达广场商业,直面河景景观,这样的配置在北京楼市市场上很少见;
昆明市中心惊现车辆冲人事件,现场一片混乱!肇事司机已被控制,真相还在调查中
每天及时更新各大楼盘项目信息,本信息仅供参考,具体请以开发商或政府部门公布的信息为准
5C超充/配34.8kWh电池 新款别克GL8陆尊PHEV实测数据曝光
《编码物候》展览开幕 北京时代美术馆以科学艺术解读数字与生物交织的宇宙节律
线 Pro 竞速版手机开启 realme UI 6 15.0.0.510 升级推送


